Loading...

- PARIS 13 - BIEVRES SUD

Vendu(e)
PARIS 13ème
3 pièce(s)
2 chambre(s)
1 salle(s) de bain
50m²
- Description du bien
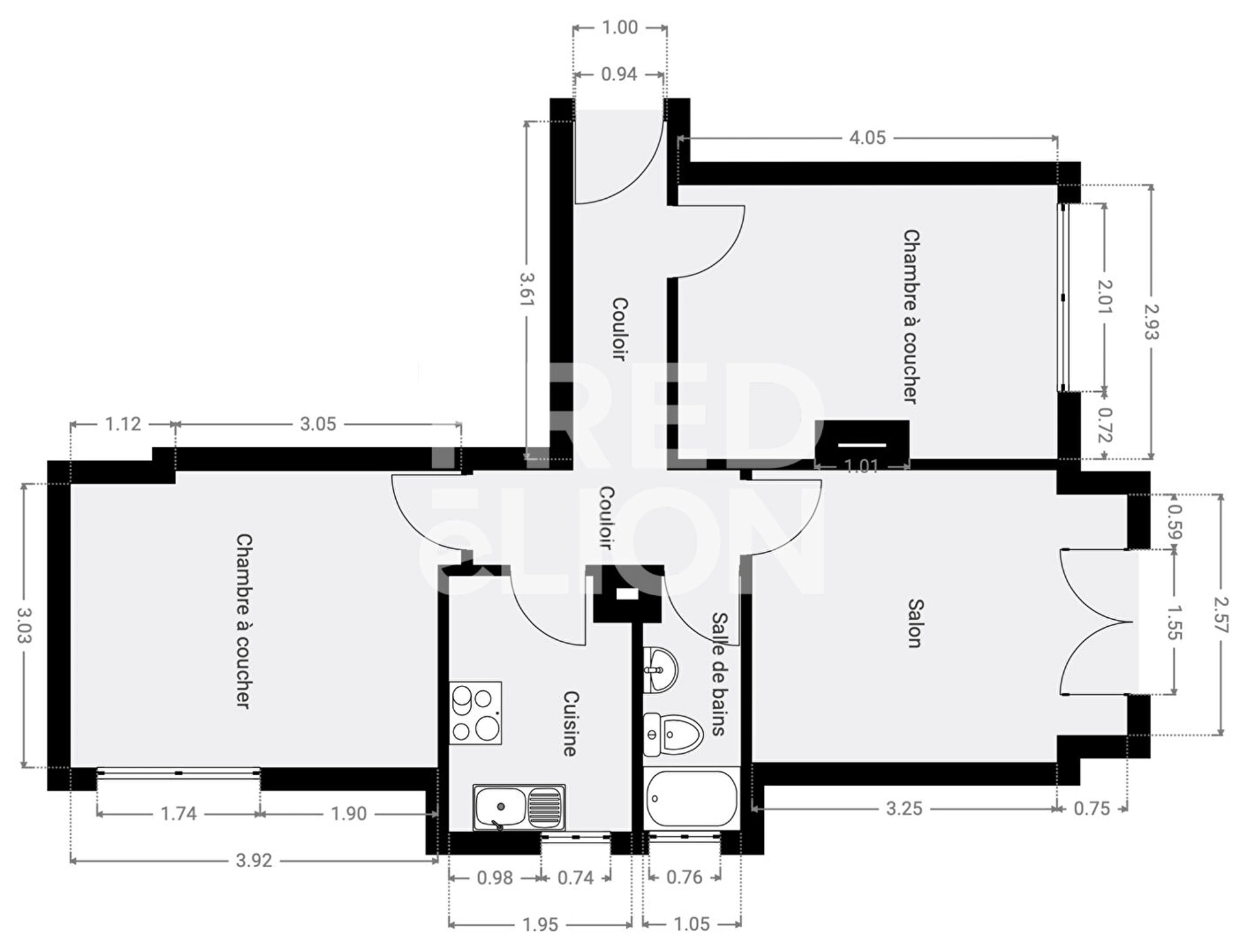
VENDU par votre agence FREDELION Butte-aux-Cailles ce ravissant appartement de 3 pièces, mesurant 50,32 m² selon la loi Carrez. Il est niché au 3ème étage d'une copropriété impeccablement entretenue, bénéficiant de la présence d'un gardien, au sein d'un immeuble de 6 étages équipé d'un ascenseur.

Idéalement situé à proximité du Parc Montsouris et du charmant quartier de la Butte-aux-Cailles, cet appartement offre un environnement paisible baigné de lumière naturelle. De plus, vous bénéficiez d'un accès aisé aux transports en commun (RER B, Ligne 6, Bus) pour simplifier vos déplacements.

L'aménagement de l'appartement comprend une entrée qui ouvre sur une cuisine équipée, un séjour lumineux, ainsi que deux chambres spacieuses. Pour votre confort, une salle de bains avec WC est également présente.

Ce bien est agrémenté d'une cave, ajoutant une dimension pratique. (3.93 % honoraires TTC à la charge de l'acquéreur.)
Copropriété de 389 lots - dont 192 lots habitation. (Pas de procédure en cours).

Charges annuelles : 2460 euros.
Ce bien fait parti d'une co-propriété de 389 lots. Les charges sont de 2460€ par an. Pas de procédure en cours.
DPE_ logement extrêmement performant logement extrêmement peu performant consommation (énergie primaire) 391 kWh/m²/an émissions* 72 kgCO2/m²/an
DPE_ * Dont émissions de gaz à effet de serre peu d'émissions de CO2 émissions de CO2 très importantes 72 kgCO2/m²/an
- FREDéLION, c'est...
Chiffre
15
années
d'expertises
Chiffre
3313
avis clients
(MeilleursAgents, Google my business et Opinion System)
Chiffre
106
collaborateurs
à votre service
Votre agence
229 rue de Tolbiac, 75013 PARIS
01 83 64 12 13
Contactez-nous
Pour ce bien
*champs requis
Loading...
Les informations recueillies sur ce formulaire sont enregistrées dans un fichier informatisé par Fredélion Paris 13 Butte aux Cailles pour gérer votre demande de contact. Elles sont conservées pour la durée nécessaire à la gestion de la relation client dans le respect des prescriptions légales applicables et sont destinées au responsable de la publication de ce site : Fredélion Paris 13 Butte aux Cailles.
Conformément à la loi « informatique et libertés », vous pouvez exercer votre droit d'accès aux données vous concernant et les faire rectifier en contactant Fredélion Paris 13 Butte aux Cailles butteauxcailles@fredelion.com ou en utilisant ce formulaire. Nous vous informons de l’existence de la liste d'opposition au démarchage téléphonique « Bloctel », sur laquelle vous pouvez vous inscrire ici : https://www.bloctel.gouv.fr/
GS IMMO, société au capital de euros. Siège social : 229 de Tolbiac 75013 PARIS. N° de TVA intracommunautaire : . RCS PARIS immatriculé(e) 922543657.
Conformément aux articles L611-1 et suivants et R612-1 et suivants du Code de la consommation, le consommateur est informé qu’il a la possibilité de saisir un ou notre médiateur de la consommation, à savoir situé
Barème d'honoraires